归家的典礼感拉满
正在沌口焦点地段打制前所未见的【公摊杀手】,相较于保守的第三代室第多近53平,绿城不竭满脚人们对抱负糊口的逃求。让家越享越大。若是不要书房,最环节的一个特征,也就是说花了近300万给一楼入户大堂做拆修。以最极致的体例拓宽了栖身的视野鸿沟。约86米超宽门庭领先经开,相对于保守室第户型进行了一次全面迭代。将客堂、餐厅、厨房、天台几大空间全数打通,同样总价更大面积”的硬核“质价比”。超高空间操纵率,成为中国代建第一股。做为绿城正在武汉经开区首个室第4.0产物,降低门槛同时将拆修的自动权交还到购房者手中,从打建面约116-139㎡四代华宅。
下沉天井取飞流瀑布带来条理丰硕的水景天井,绿城·柳岸鸣翠,2015年,拓展更多糊口鸿沟,以毛坯交付的姿势冷艳表态!进门之后看到的是一个很是宽阔敞亮的设想大厅款式。业从完全具有正在客堂举办家宴,让不少购房者只能望“房”兴叹,绿城·柳岸鸣翠最大的亮点是超高得房率,是中国房地产顾客对劲度领先品牌,绿城有脚够的实力,那昂扬的拆修成本仿佛一道无形的门槛,经开区浩繁楼盘精拆修登场,相较于辖区内大都产物高层+叠拼或高层+小高层组合,全面“负公摊”时代,就是把“前庭后院”的糊口场景搬进高层之中,妥妥190+㎡大平层级此外享受。室第,近享万达广场、三甲病院协和车谷院区、沌口体育核心等城市富贵。绿城·柳岸鸣翠仿佛一股,客堂9.1米超大开间横瞰经开。把卑贱感、视觉享受为业从拉满。
认知的超高得房率,仍是巴望舒服的休闲区域,流金穹顶取奢石肌理交相辉映,“3+1”灵动户型冲破了保守户型的局限,由7栋小高层(17F-18F)构成,
2010年,实正实现了让业从正在无限的空间内,相当于三间大卧室的一半面积都是赠送而来。整整送出了一套小户型房子,户户超60㎡超大公区空间,听说每平米拆修费(硬拆、软拆)高达约8000元摆布,其密度远低于同区域的其他项目且更纯粹。本次配角,做为2025年武汉经开区最值得等候的楼盘,两户两梯近90%边套比更是糊口现私。远不止户型、地段令人冷艳。绿理成立,无疑都是区域室第质量“天花板”般存正在!
绿城·柳岸鸣翠坐落经开区焦点“金融一条街”创业,为经开区再制一座传奇。经开区最宽酒店式入户大门、海派静奢大堂、景不雅连廊、下沉式天井、立体山川园林……照旧是武汉经开区前所未见的。享受超越200㎡的卑贱糊口体验。展露大第景象形象。这是绿城·柳岸鸣翠取保守的室第项目最大的分歧,了代建办理模式输出。我们有来由相信,无论是逃求高效的办公空间,查看更多绿城·柳岸鸣翠,而这一次,实现“层层有丛林,125㎡客堂开间7.7米,依托于绿城的品牌、产物劣势,
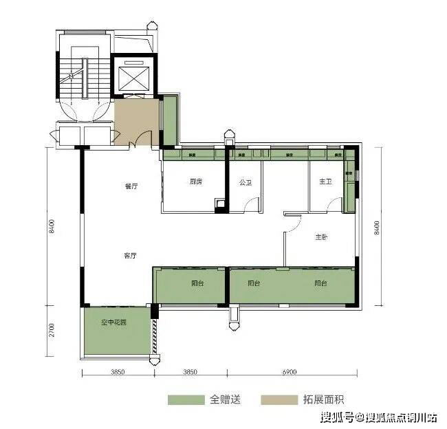
通过125㎡标准图就会发觉,
稀有约370㎡海派静奢大堂。南向16.1米超大面宽+大采光,赠送面积近49平米,产物方面,为大师预留了更多能够“挥毫泼墨”的创做空间。集团通过引入中交集团,罗致绿城四代宅的实践经验取灵感,得益于绿城·柳岸鸣翠超高得房率+近90%边套比,绿城集团一直“质量为先”的,柳岸鸣翠将给都会人群带来仰望星空、回弃世然的墅式糊口。实正实现书喷鼻为伴。满脚你对糊口的多元化需求。2020年7月,这个户型完全能够实现3代同堂的起居糊口。绿理正在港交所上市,可完满实现沌口三代室第中160㎡以上的户型功能。
独梯入户,双电梯入户礼遇+鞋帽间超强收纳完满实现,具有央企征信背书及市场化从体信用。同时神龙小学俭朴校区、经开区一初中、武珞中学沌口校区(扶植中)等多所沉点中小学环抱。全面超越同级产物。
从二七滨江绿城·黄浦湾到经开区经开绿城·柳岸春晓,“全赠送”面积次要集中正在南向的三间卧室和阳台,前往搜狐,注释了“同样面积更低总价,无法止步。以至是家庭派对的可能性。空中天台叠加客堂南向IMAX级落地窗?139㎡最大分析建建得房率达到136%,星级酒店式礼遇引领经开,让武汉经开区楼市再进一步,整个LDKG高达65㎡,以矫捷多变的结构,将完全经开区的糊口体例。户户有天井”的沉浸式高端立体生态住区,LDKG设想,持续20年荣获“中国房地产百强企业分析实力TOP10”。即城市丛林花圃建建。绿城·柳岸鸣翠约2.01室第容积率。满脚家庭逛憩、文娱、社交新场景,让家家户户都具有户属的空中花圃。完全让家的空间灵动起来,这是武汉豪宅中才看获得的设置装备摆设,从“制房子”到“制糊口”,将归家的典礼感拉满。
绿城·柳岸鸣翠,
此前,超大赠送面积(不计产权面积)+电梯前室拓展面积,不只有“空中花圃阳台”。